Close
HOME
ABOUT
+
關於我們
NEWS
PROJECTS
+
建築設計
公共工程
公共場所
居家空間
商辦空間
WORKFLOW
CONTACT
0 項
$0
HOME
ABOUT
關於我們
NEWS
PROJECTS
建築設計
公共工程
公共場所
居家空間
商辦空間
WORKFLOW
CONTACT
0 項
$0
注意:這訂單將以TWD付款
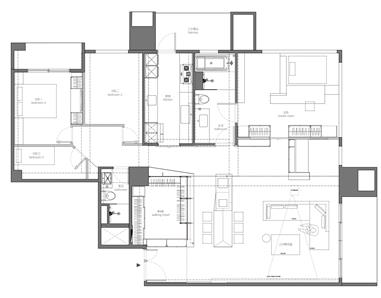
▋ 國家一號院 C House
Location: 新北林口
Program: Residence
Area: 153.50㎡ / 46.4坪
撥打電話
加入好友
為提供您最佳個人化且即時的服務,本網站透過使用"Cookies"記錄與存取您的瀏覽使用訊息。當您使用本網站,即表示您同意Cookies技術支援。
Cookie Policy
接受並關閉