▋ 私宅 L House
Location: 新北汐止
Program: House
Floor Height: 地上五層
本案坐落於新北市汐止夢幻透天
當居住可以重新在垂直的空間中RE-Program
地面層保留最大彈性、泳池、後院、兩個室內車位
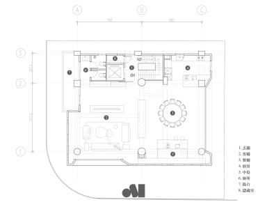
二層保留隱私的Living Space,作為招待所、客廳
三至五層放置住居的單元共八間套房
▋ 私宅 L House
Location: 新北汐止
Program: House
Floor Height: 地上五層
本案坐落於新北市汐止夢幻透天
當居住可以重新在垂直的空間中RE-Program
地面層保留最大彈性、泳池、後院、兩個室內車位
二層保留隱私的Living Space,作為招待所、客廳
三至五層放置住居的單元共八間套房